Search

Leave a Message

Thank you for your message. We will be in touch with you shortly.

Explore Our Properties

Property Description

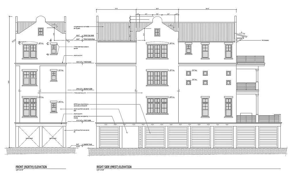
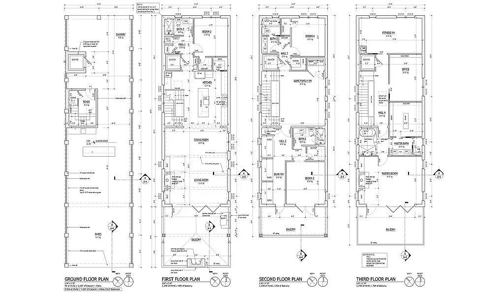
Rare opportunity to own a shovel-ready beachfront property in beautiful Port St. Joe, just minutes from Mexico Beach. This property comes with fully approved house plans (4062 sq ft living space; 1507 sq ft car port; 817 sq ft balconies), engineering drawings and FDEP approvals for a stunning three-story coastal home. - Beachfront lot with unobstructed Gulf views - Approved Florida DEP proceed order already in place (valid through September 2027) - Engineering and architectural plans completed - Three living floors with open parking/storage level beneath - Spacious balconies to capture sunsets and breeze - Because required public notices have already been completed with no objections filed, the buildability of the home is further protected. This is a true turnkey opportunity - skip years of permitting and be ready to build this dream beach home now.

Overview

Property Status
For Sale
Lot Size
0.29 Acres
MLS ID
324983
Property Type
Land

Features & Amenities

Neighborhood
Windmark Beach
Water Frontage
Gulf
View Description
1st Tier Gulf, Water
Utilites
Electricity Available, Sewer Available, Water Available
Lot Features
Build to Suit, Cleared, Coastal Setback, Flood Insurance Required
Sales Price
$1,175,000

Downloads

8865 Highway 98, Port St. Joe 32456

Schedule a Tour

We would love to help you see this beautiful home! As a full-service brokerage, we can help you tour. Please submit an offer, and answer questions about the buying process.

Enter a valid email

Thank you

for your interest in 8865 Highway 98, Port St. Joe 32456, Port St Joe, FL

back to page
8865 Highway 98, Port St. Joe 32456
Navigate
Windmark Beach

Explore Windmark Beach

read more

Mortgage Calculator

Estimate your monthly mortgage payment, including the principal and interest, property taxes, and HOA. Adjust the values to generate a more accurate rate.
$0,000 Your Payment 20 15 65
$0,000 Your Payment

I'm Interested In

8865 Highway 98, Port St. Joe 32456

or
  • CallJeff Swayze

    License #295062 TN | #BK3611143 FL

    (850) 247-4151
  • Featured Properties

    • 825 Backwater Rd, Port St. Joe 32456 For Sale

      $549,000

      825 Backwater Rd, Port St. Joe 32456, Port St Joe, FL

      • 4 Beds
      • 3 Baths
      • 2,197 Sq.Ft.
    • 542 Vermilion Circle, Port St. Joe For Sale

      $509,000

      542 Vermilion Circle, Port St. Joe, Port St Joe, FL 32456

      • 5 Beds
      • 3 Baths
      • 2,145 Sq.Ft.
    • 592 Bonnet Street, Port St. Joe For Sale

      $469,000

      592 Bonnet Street, Port St. Joe, Port St Joe, FL 32456

      • 3 Beds
      • 2 Baths
      • 1,102 Sq.Ft.
    View All Properties

    Follow Us On Instagram