Search

Leave a Message

Thank you for your message. We will be in touch with you shortly.

Explore Our Properties

Property Description

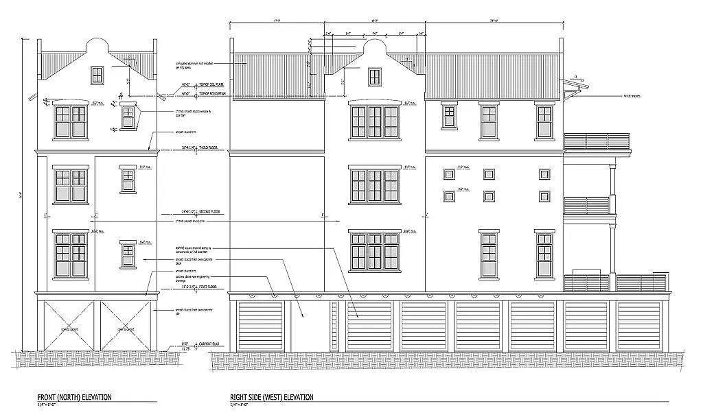
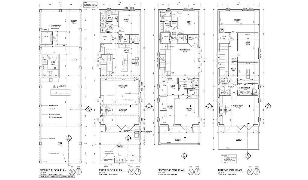
Rare opportunity to own a shovel-ready beachfront property in beautiful Port St. Joe, just minutes from Mexico Beach. This property comes with fully approved house plans (4062 sq ft living space; 1507 sq ft car port; 817 sq ft balconies), engineering drawings and FDEP approvals for a stunning three-story coastal home. - Beachfront lot with unobstructed Gulf views - Approved Florida DEP proceed order already in place (valid through September 2027) - Engineering and architectural plans completed - Three living floors with open parking/storage level beneath - Spacious balconies to capture sunsets and breeze - Because required public notices have already been completed with no objections filed, the buildability of the home is further protected. This is a true turnkey opportunity - skip years of permitting and be ready to build this dream beach home now.

Overview

Property Status
For Sale
Lot Size
0.29 Acres
MLS ID
324348
Property Type
Land

Features & Amenities

Neighborhood
Cape San Blas
Water Frontage
Gulf
View Description
1st Tier Gulf, Water
Utilites
Electricity Available, Sewer Available, Water Available
Lot Features
Build to Suit, Cleared, Coastal Setback, Flood Insurance Required
Parking
RV Access/Parking
Sales Price
$1,150,000

Downloads

8865 Highway 98, Mexico Beach 32456

Schedule a Tour

We would love to help you see this beautiful home! As a full-service brokerage, we can help you tour. Please submit an offer, and answer questions about the buying process.

Enter a valid email

Thank you

for your interest in 8865 Highway 98, Port St. Joe 32456, Port St Joe, FL

back to page
8865 Highway 98, Mexico Beach 32456
Navigate
Cape San Blas

Explore Cape San Blas

read more

Mortgage Calculator

Estimate your monthly mortgage payment, including the principal and interest, property taxes, and HOA. Adjust the values to generate a more accurate rate.
$0,000 Your Payment 20 15 65
$0,000 Your Payment

I'm Interested In

8865 Highway 98, Mexico Beach 32456

or
  • CallJeff Swayze

    License #295062 TN | #BK3611143 FL

    (850) 247-4151
  • Featured Properties

    • 187 Marsh View Ridge Ln, 32456 For Sale

      $889,900

      187 Marsh View Ridge Ln, 32456, Cape San Blas, FL

      • 5 Beds
      • 4 Baths
      • 2,383 Sq.Ft.
    • 828 Oleander Ave, 32456 For Sale

      $850,000

      828 Oleander Ave, Mexico Beach 32456, Mexico Beach, FL

      • 3 Beds
      • 2 Baths
      • 1,472 Sq.Ft.
    • 198 Spinnaker Way For Sale

      $849,900

      198 Spinnaker Way, Cape San Blas, FL 32456

      • 5 Beds
      • 4 Baths
      • 2,383 Sq.Ft.
    • 176 Marsh View Ridge Lane For Sale

      $829,900

      176 Marsh View Ridge Lane, Cape San Blas, FL 32456

      • 5 Beds
      • 4 Baths
      • 2,383 Sq.Ft.
    • 187 Marsh View Ridge Lane For Sale

      $829,900

      187 Marsh View Ridge Lane, Cape San Blas, FL 32456

      • 5 Beds
      • 4 Baths
      • 2,383 Sq.Ft.
    • 144 Marsh View Ridge Lane For Sale

      $819,900

      144 Marsh View Ridge Lane, Cape San Blas, FL 32456

      • 5 Beds
      • 4 Baths
      • 2,383 Sq.Ft.
    • 143 Marsh View Ridge Lane For Sale

      $799,900

      143 Marsh View Ridge Lane, Cape San Blas, FL 32456

      • 5 Beds
      • 4 Baths
      • 2,383 Sq.Ft.
    • 143 Marsh View Ridge Ln, 32456 For Sale

      $789,900

      143 Marsh View Ridge Ln, 32456, Cape San Blas, FL

      • 5 Beds
      • 4 Baths
      • 2,383 Sq.Ft.
    • 144 Marsh View Ridge Ln, 32456 For Sale

      $789,900

      144 Marsh View Ridge Ln, 32456, Cape San Blas, FL

      • 5 Beds
      • 4 Baths
      • 2,383 Sq.Ft.
    • 176 Marsh View Ridge Ln, 32456 For Sale

      $789,900

      176 Marsh View Ridge Ln, 32456, Cape San Blas, FL

      • 5 Beds
      • 4 Baths
      • 2,383 Sq.Ft.
    • 187 Marsh View Ridge Ln, 32456 For Sale

      $789,900

      187 Marsh View Ridge Ln, 32456, Cape San Blas, FL

      • 5 Beds
      • 4 Baths
      • 2,383 Sq.Ft.
    • 175 Marsh View Ridge Lane For Sale

      $784,900

      175 Marsh View Ridge Lane, Cape San Blas, FL 32456

      • 5 Beds
      • 4 Baths
      • 2,144 Sq.Ft.
    • 112 Marsh View Ridge Lane For Sale

      $779,900

      112 Marsh View Ridge Lane, Cape San Blas, FL 32456

      • 5 Beds
      • 4 Baths
      • 2,144 Sq.Ft.
    • 158 Marsh View Ridge Lane For Sale

      $779,900

      158 Marsh View Ridge Lane, Cape San Blas, FL 32456

      • 5 Beds
      • 4 Baths
      • 2,144 Sq.Ft.
    • 123 Marsh View Ridge Lane For Sale

      $759,900

      123 Marsh View Ridge Lane, Cape San Blas, FL 32456

      • 5 Beds
      • 4 Baths
      • 2,144 Sq.Ft.
    • 123 Marsh View Ridge Ln, 32456 For Sale

      $749,900

      123 Marsh View Ridge Ln, 32456, Cape San Blas, FL

      • 5 Beds
      • 4 Baths
      • 2,144 Sq.Ft.
    • 136 Marsh View Ridge Lane For Sale

      $749,900

      136 Marsh View Ridge Lane, Cape San Blas, FL 32456

      • 4 Beds
      • 4 Baths
      • 2,034 Sq.Ft.
    • 136 Marsh View Ridge Ln, 32456 For Sale

      $749,900

      136 Marsh View Ridge Ln, 32456, Cape San Blas, FL

      • 4 Beds
      • 4 Baths
      • 2,034 Sq.Ft.
    • 158 Marsh View Ridge Ln, 32456 For Sale

      $749,900

      158 Marsh View Ridge Ln, 32456, Cape San Blas, FL

      • 5 Beds
      • 4 Baths
      • 2,144 Sq.Ft.
    • 175 Marsh View Ridge Ln, 32456 For Sale

      $749,900

      175 Marsh View Ridge Ln, 32456, Cape San Blas, FL

      • 5 Beds
      • 4 Baths
      • 2,144 Sq.Ft.
    • 402 California Dr, 32456 For Sale

      $725,000

      402 California Dr, Mexico Beach 32456, Mexico Beach, FL

      • 4 Beds
      • 3 Baths
      • 1,819 Sq.Ft.
    • 329 Vermilion Cir, Port St. Joe 32456 For Sale

      $536,320

      329 Vermilion Cir, Port St. Joe 32456, Port St Joe, FL

      • 5 Beds
      • 3 Baths
      • 2,145 Sq.Ft.
    • 353 Vermilion Circle For Sale

      $536,320

      353 Vermilion Circle, Port St Joe, FL 32456

      • 4 Beds
      • 3 Baths
      • 2,145 Sq.Ft.
    • 353 Vermilion Cir, Port St. Joe 32456 For Sale

      $536,320

      353 Vermilion Cir, Port St. Joe 32456, Port St Joe, FL

      • 5 Beds
      • 3 Baths
      • 2,145 Sq.Ft.
    • 329 Vermilion Circle For Sale

      $532,400

      329 Vermilion Circle, Port St Joe, FL 32456

      • 5 Beds
      • 3 Baths
      • 2,145 Sq.Ft.
    • 128 Needle Rush Drive For Sale

      $511,320

      128 Needle Rush Drive, Port St Joe, FL 32456

      • 5 Beds
      • 3 Baths
      • 2,145 Sq.Ft.
    • 128 Needle Rush Dr, Port St. Joe 32456 For Sale

      $511,320

      128 Needle Rush Dr, Port St. Joe 32456, Port St Joe, FL

      • 5 Beds
      • 3 Baths
      • 2,145 Sq.Ft.
    • 114 Needle Rush Drive For Sale

      $501,320

      114 Needle Rush Drive, Port St Joe, FL 32456

      • 4 Beds
      • 3 Baths
      • 2,145 Sq.Ft.
    • 142 Needle Rush Drive For Sale

      $501,320

      142 Needle Rush Drive, Port St Joe, FL 32456

      • 4 Beds
      • 3 Baths
      • 2,145 Sq.Ft.
    • 148 Needle Rush Drive For Sale

      $501,320

      148 Needle Rush Drive, Port St Joe, FL 32456

      • 4 Beds
      • 3 Baths
      • 2,145 Sq.Ft.
    • 338 Jones Homestead Rd, Port St. Joe 32456 For Sale

      $490,160

      338 Jones Homestead Rd, Port St. Joe 32456, Port St Joe, FL

      • 5 Beds
      • 3 Baths
      • 2,145 Sq.Ft.
    • 338 Jones Homestead Road For Sale

      $490,160

      338 Jones Homestead Road, Port St Joe, FL 32456

      • 5 Beds
      • 3 Baths
      • 2,145 Sq.Ft.
    • 302 Jones Homestead Road For Sale

      $480,160

      302 Jones Homestead Road, Port St Joe, FL 32456

      • 5 Beds
      • 3 Baths
      • 2,145 Sq.Ft.
    • 122 Needle Rush Dr, Port St. Joe 32456 For Sale

      $476,755

      122 Needle Rush Dr, Port St. Joe 32456, Port St Joe, FL

      • 4 Beds
      • 2 Baths
      • 2,044 Sq.Ft.
    • 136 Needle Rush Drive For Sale

      $476,755

      136 Needle Rush Drive, Port St Joe, FL 32456

      • 4 Beds
      • 2 Baths
      • 2,044 Sq.Ft.
    • 365 Vermilion Cir, Port St. Joe 32456 For Sale

      $476,035

      365 Vermilion Cir, Port St. Joe 32456, Port St Joe, FL

      • 4 Beds
      • 2 Baths
      • 1,799 Sq.Ft.
    • 154 Needle Rush Drive For Sale

      $472,400

      154 Needle Rush Drive, Port St Joe, FL 32456

      • 4 Beds
      • 2 Baths
      • 2,044 Sq.Ft.
    • 341 Vermilion Circle For Sale

      $472,400

      341 Vermilion Circle, Port St Joe, FL 32456

      • 4 Beds
      • 2 Baths
      • 1,799 Sq.Ft.
    • 365 Vermilion Circle For Sale

      $472,400

      365 Vermilion Circle, Port St Joe, FL 32456

      • 4 Beds
      • 2 Baths
      • 1,799 Sq.Ft.
    • 147 Needle Rush Drive For Sale

      $469,685

      147 Needle Rush Drive, Port St Joe, FL 32456

      • 4 Beds
      • 2 Baths
      • 1,799 Sq.Ft.
    • 112 Walkabout Court For Sale

      $468,940

      112 Walkabout Court, Port St Joe, FL 32456

      • 4 Beds
      • 3 Baths
      • 2,303 Sq.Ft.
    • 112 Walkabout Ct, Port St. Joe 32456 For Sale

      $468,940

      112 Walkabout Ct, Port St. Joe 32456, Port St Joe, FL

      • 4 Beds
      • 3 Baths
      • 2,303 Sq.Ft.
    • 113 Crane Drive Pending

      $468,940

      113 Crane Drive, Port St Joe, FL 32456

      • 4 Beds
      • 3 Baths
      • 2,303 Sq.Ft.
    • 119 Walkabout Court Pending

      $468,940

      119 Walkabout Court, Port St Joe, FL 32456

      • 4 Beds
      • 3 Baths
      • 2,303 Sq.Ft.
    • 373 Vermilion Circle For Sale

      $466,035

      373 Vermilion Circle, Port St Joe, FL 32456

      • 4 Beds
      • 2 Baths
      • 1,799 Sq.Ft.
    • 373 Vermilion Cir, Port St. Joe 32456 For Sale

      $466,035

      373 Vermilion Cir, Port St. Joe 32456, Port St Joe, FL

      • 4 Beds
      • 2 Baths
      • 1,799 Sq.Ft.
    • 153 Needle Rush Drive For Sale

      $461,035

      153 Needle Rush Drive, Port St Joe, FL 32456

      • 4 Beds
      • 2 Baths
      • 1,799 Sq.Ft.
    • 314 Jones Homestead Road Pending

      $459,900

      314 Jones Homestead Road, Port St Joe, FL 32456

      • 5 Beds
      • 3 Baths
      • 2,145 Sq.Ft.
    • 230 Sea Tern Lane For Sale

      $454,900

      230 Sea Tern Lane, Port St Joe, FL 32456

      • 4 Beds
      • 3 Baths
      • 1,710 Sq.Ft.
    • 230 Sea Tern Ln, Port St. Joe 32456 For Sale

      $454,900

      230 Sea Tern Ln, Port St. Joe 32456, Port St Joe, FL

      • 4 Beds
      • 3 Baths
      • 1,710 Sq.Ft.
    View All Properties

    Follow Us On Instagram